Stetsonham
AH enthusiast
Hello gents!
Now that I’ve got your attention yes, the title was a little clickbaity, but not totally a lie I wanted to jump in and share my own version of the “Trophy Room” builds that’s been making the rounds on the forum lately.
I just started this project a couple of weeks ago, so we’re far from the finish line, but I thought it’d be fun to document the journey over the summer as it progresses. Hopefully it inspires someone or at least provides some entertainment.
The Background & The Deal
I’m in real estate by trade, so projects like this are kind of in my wheelhouse. I’ve always believed that with the right mindset, you can find value in the most unexpected places and that’s how this whole thing started. And my moto in life is not if I can afford something but how can I afford it and this is a perfect example.
Earlier this year, back in March, I picked up a foreclosure at auction. The property includes a main house 3,200 sqft and 3,000 sq ft of commercial kennel space.
Here’s where it gets fun.
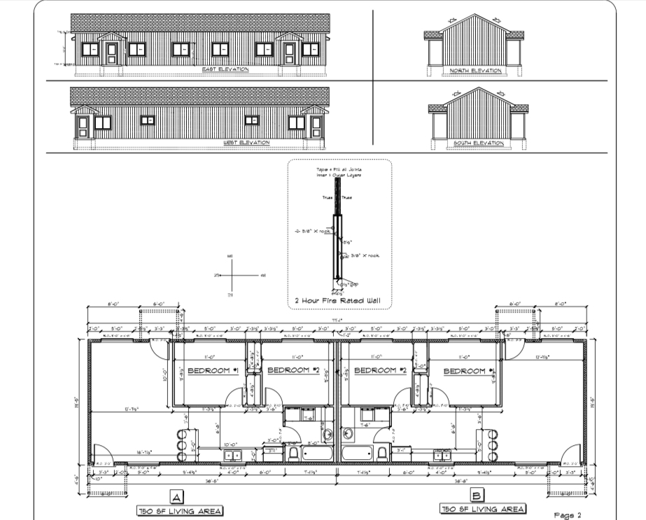
I’m converting half of the dog kennel 3,000 sq ft (1,500 sq ft) into my trophy room/man cave. The other 1,500 sq ft will become a duplex two separate 750 sq ft units. Once finished, I plan to rent the units out possibly short-term via Airbnb or long-term, depending on what pencils out best. Right now, I’m leaning toward Airbnb for the added cash flow potential.
Why “Free”?
Okay, so not totally free, but once the duplex is rented, those two units should cover around 85% of my mortgage with the traditional long term rentals but with the short term strategy I have the potential to put money in the bank every month. (Africa here I come hahah…) That means I get to enjoy a newly remodeled home and a custom trophy room for next to nothing out-of-pocket on a monthly basis. Not a bad trade-off, right?
The Build So Far
The property had fire damage, so I’m currently knee-deep in demo. Old owner got into a dispute with the county and thought his best option was to burn it all down. Lucky for me he’s shit at starting fires. Like most construction projects, it’s come with some surprises. Turns out the previous “tenants” (a.k.a. mice) had annihilated the insulation and chewed through nearly every wire in the walls. So I’m doing way more demo and replacement than originally expected. But that’s how it goes.
As of now:
Thanks for following along, and I look forward to sharing progress over the summer! Remember, not if but how… Cheers
Now that I’ve got your attention yes, the title was a little clickbaity, but not totally a lie I wanted to jump in and share my own version of the “Trophy Room” builds that’s been making the rounds on the forum lately.
I just started this project a couple of weeks ago, so we’re far from the finish line, but I thought it’d be fun to document the journey over the summer as it progresses. Hopefully it inspires someone or at least provides some entertainment.
The Background & The Deal
I’m in real estate by trade, so projects like this are kind of in my wheelhouse. I’ve always believed that with the right mindset, you can find value in the most unexpected places and that’s how this whole thing started. And my moto in life is not if I can afford something but how can I afford it and this is a perfect example.
Earlier this year, back in March, I picked up a foreclosure at auction. The property includes a main house 3,200 sqft and 3,000 sq ft of commercial kennel space.
Here’s where it gets fun.
I’m converting half of the dog kennel 3,000 sq ft (1,500 sq ft) into my trophy room/man cave. The other 1,500 sq ft will become a duplex two separate 750 sq ft units. Once finished, I plan to rent the units out possibly short-term via Airbnb or long-term, depending on what pencils out best. Right now, I’m leaning toward Airbnb for the added cash flow potential.
Why “Free”?
Okay, so not totally free, but once the duplex is rented, those two units should cover around 85% of my mortgage with the traditional long term rentals but with the short term strategy I have the potential to put money in the bank every month. (Africa here I come hahah…) That means I get to enjoy a newly remodeled home and a custom trophy room for next to nothing out-of-pocket on a monthly basis. Not a bad trade-off, right?
The Build So Far
The property had fire damage, so I’m currently knee-deep in demo. Old owner got into a dispute with the county and thought his best option was to burn it all down. Lucky for me he’s shit at starting fires. Like most construction projects, it’s come with some surprises. Turns out the previous “tenants” (a.k.a. mice) had annihilated the insulation and chewed through nearly every wire in the walls. So I’m doing way more demo and replacement than originally expected. But that’s how it goes.
As of now:
- Demo is nearly complete
- Power is back on
- Materials have been ordered for framing the duplex
- All interior materials for the trophy room are on-site and ready to go
Thanks for following along, and I look forward to sharing progress over the summer! Remember, not if but how… Cheers
